Product Description
4911W-25-221-628 Adams Rite Heavy Duty Deadlatch with Radius Faceplate with weatherseal in Clear Anodized Finish
The 4911W-25-221-628 series Deadlatch offers maximum flexibility of traffic control and easy installation. A reverse turn of the key (while bolt is held fully retracted) retains the bolt and thus allowing the door to be free swinging with two-way traffic for hospitals, banks, stores, and other buildings which require free entrance at certain times and exit-only at other times. It is easily interchangeable, without stile modification with any MS1850A or MS1850S Deadlock of same backset and faceplate shape. It also retrofits to existing 4500 and 4700 Deadlatch preparations.
Benefits and Features:
- Clear Anodized Finish
- Aluminum construction
- LH or RHR - handed operation is easily reversible using only a screwdriver
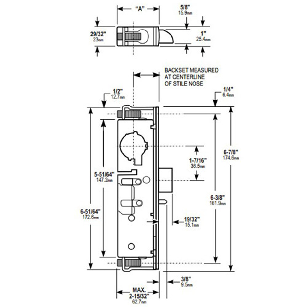
- Cylinder Backset: 31/32"
- Case is made of steel with corrosion-resistant plating that measures 7/8" x 5-13/16" x depth (depth varies by bracket)
- 1-3/4" minimum door thickness required
- Grade 1 Standard
- Uses any standard 1-5/32" mortise cylinder with MS dimensioned cam
- Faceplate measures 1" x 6-7/8"
- Latchbolt is of solid brass with 5/8" x 1" x 5/8" throw
- Mortised (4902) 2-5/8" strike size
- Auxiliary latchpin is made of all stainless steel for deadlocks latch bolt to prevent "the old credit card trick" or case-knife entry
- Flat strike shape with center hung 4.5" jamb lip length
- Long lip strikes for centerhung doors
- 3 year limited manufacturer's warranty is included
Individually boxed with faceplate, strike and machine screws for mounting